Offered for $899,000
605 Prospect Drive
Mt. Crested Butte, CO 81225
- Acreage: 1.33
- Subdivision: Prospect at Mt. CB
- Taxes: $10,649
- MLS #826414
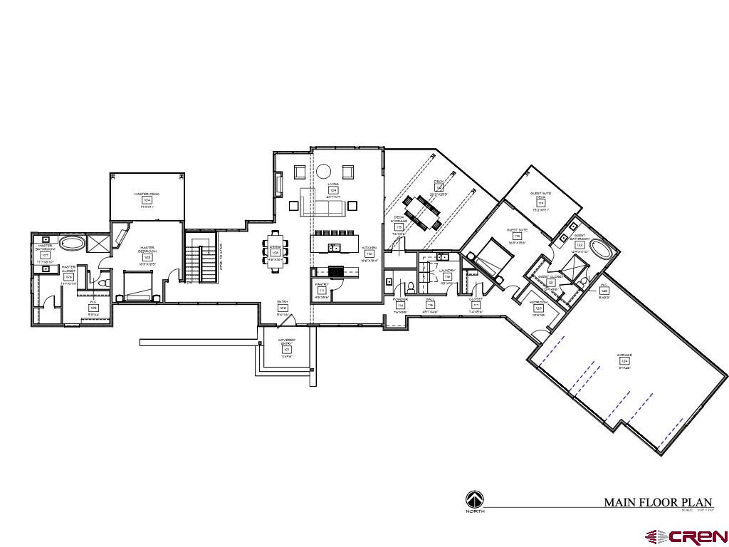
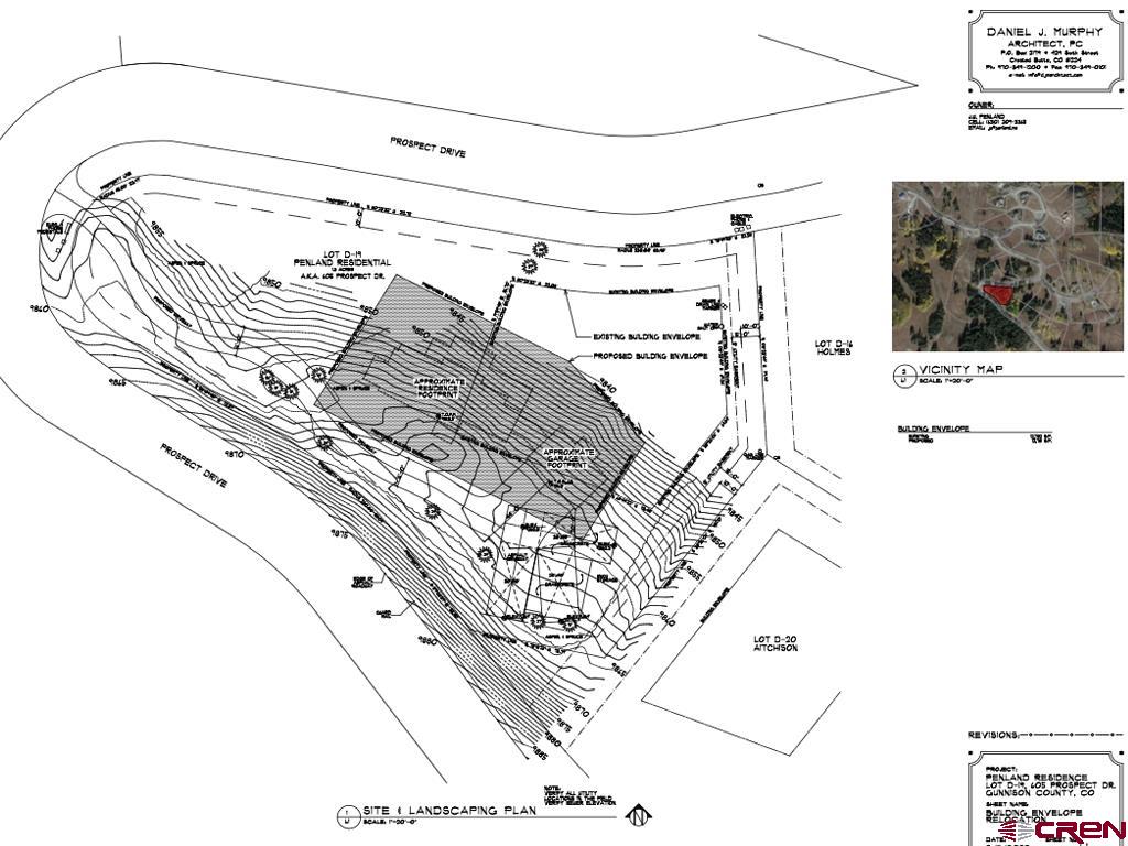
Ski-In/Ski-Out Homesite with Panoramic Mountain Views. This oversized 1.33-acre parcel in the coveted Prospect Subdivision in Mt. Crested Butte offers convenience for your family, friends and clients. Situated on the northwest side of Crested Butte Mountain, this prime location delivers skier access via the Prospect lift, the perfect setting for your dream mountain retreat. The seller has done the heavy lifting with a topographical survey, full architectural plans, soils test, and Prospect Design Review Committee approval already in place — saving you significant time, money, and more than a year in the design/build timeline. Don’t miss this rare opportunity to build your dream ski home in Mt. Crested Butte.
Offered for $899,000
605 Prospect Drive
Mt. Crested Butte, CO 81225
Listing courtesy of Coldwell Banker Mountain Properties.
The data relating to real estate for sale on this web site comes in part from the Internet Data Exchange (IDX) program of Colorado Real Estate Network, Inc. (CREN), © Copyright 2025. All rights reserved. All data deemed reliable but not guaranteed and should be independently verified. This database record is provided subject to "limited license" rights. Duplication or reproduction is prohibited.
FULL CREN Disclaimer
Real Estate listings held by companies other than CREN contain that company’s name.
Fair Housing Disclaimer
This data was last updated: 2025-12-18 11:26pm