409 Sierra Vista Way

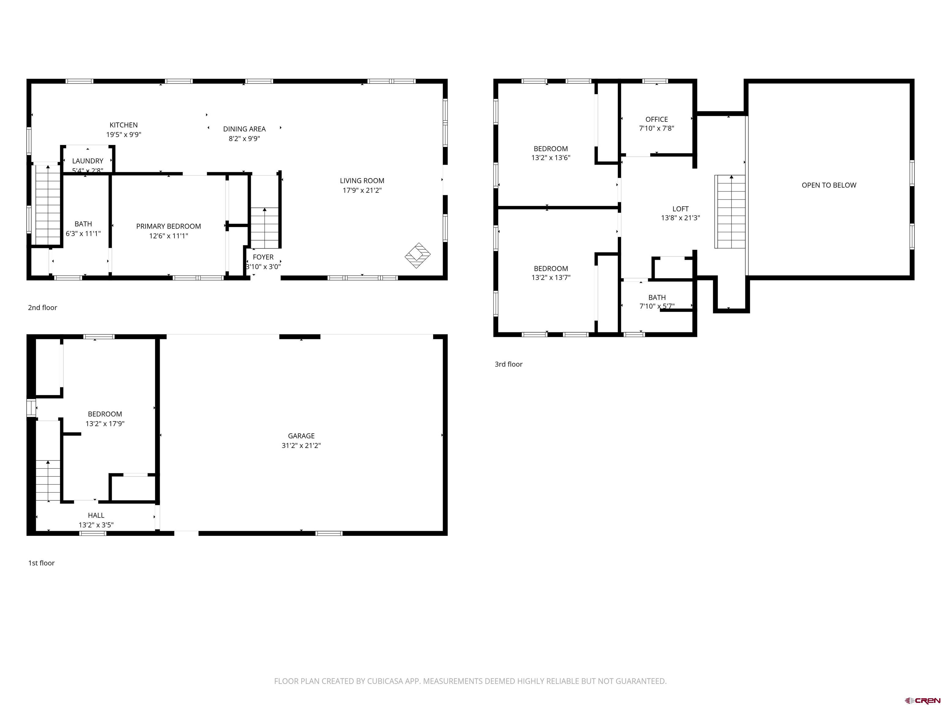
Welcome to this beautifully maintained 4 bedroom/2 bathroom home located just north of Gunnison. Set on a spacious lot with sweeping views of Red Mountain, Flat Top, and Carbon Peak, this 2,170 square foot property offers a rare blend of comfort, functionality, and recreation. Inside, you’ll find an open-concept layout that seamlessly connects the living room and kitchen, perfect for entertaining or cozy nights in. The home features efficient electric baseboard heating and a warm, inviting wood pellet stove to keep you comfortable through the Gunnison winters. Step outside and discover your very own 75-yard golf hole for short game practice, a unique and fun feature for golf enthusiasts or those who simply enjoy outdoor living. The oversized 644 square foot two-car garage provides ample room for vehicles, gear, or workshop space. Enjoy the freedom to live as you please in this serene mountain setting. Whether you’re looking for a full time residence or a high country getaway, 409 Sierra Vista Way offers an unbeatable combination of views, versatility, and value. Brand new septic system installed April 2025.

More »

Offered for $819,000

409 Sierra Vista Way
Gunnison, CO 81230

  • Bedrooms: 4
  • Baths: 1 full, 1 three quarter
  • Parking: Attached Garage (2 spaces)
  • Year Built: 1981
  • Living Area: 2,170 sqft
  • Acreage: 1.57
  • Subdivision: Sierra Vista
  • Taxes: $2,097
  • MLS #832026

Map

Listing courtesy of The Clarke Agency.

The data relating to real estate for sale on this web site comes in part from the Internet Data Exchange (IDX) program of Colorado Real Estate Network, Inc. (CREN), © Copyright 2026. All rights reserved. All data deemed reliable but not guaranteed and should be independently verified. This database record is provided subject to "limited license" rights. Duplication or reproduction is prohibited.
FULL CREN Disclaimer

Real Estate listings held by companies other than CREN contain that company’s name.
Fair Housing Disclaimer

This data was last updated: 2026-05-26 6:21pm