Sold for $1,870,000
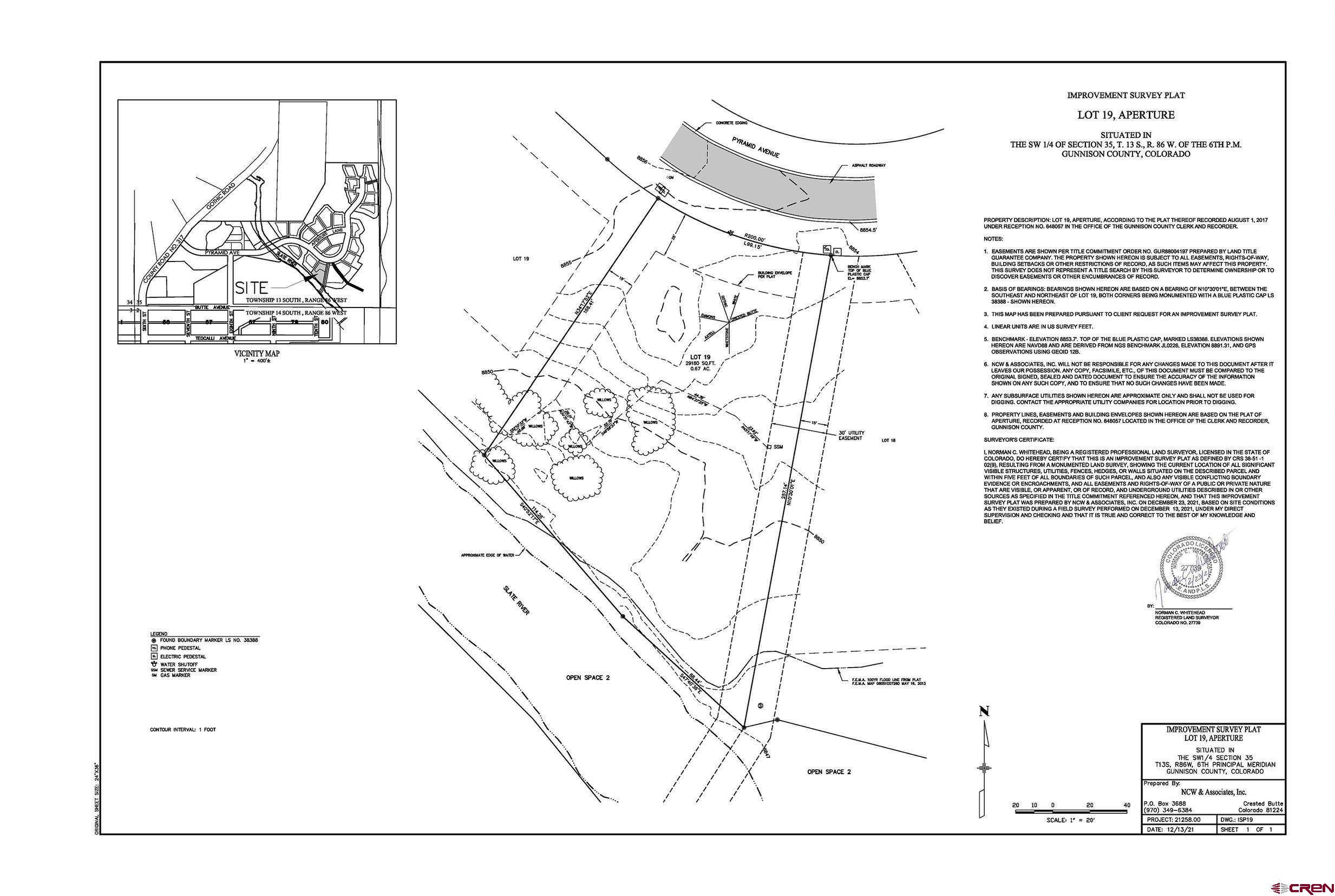
130 Pyramid Avenue
Crested Butte, CO 81224
- Acreage: 0.55
- MLS #809830
Sold for $1,870,000
130 Pyramid Avenue
Crested Butte, CO 81224
Listing courtesy of LIV Sotheby's International Realty - CB.
The data relating to real estate for sale on this web site comes in part from the Internet Data Exchange (IDX) program of Colorado Real Estate Network, Inc. (CREN), © Copyright 2026. All rights reserved. All data deemed reliable but not guaranteed and should be independently verified. This database record is provided subject to "limited license" rights. Duplication or reproduction is prohibited.
FULL CREN Disclaimer
Real Estate listings held by companies other than CREN contain that company’s name.
Fair Housing Disclaimer
This data was last updated: 2026-01-01 11:22pm